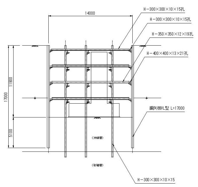
鋼矢板土留工弾塑性解析



ウィンドウを閉じる