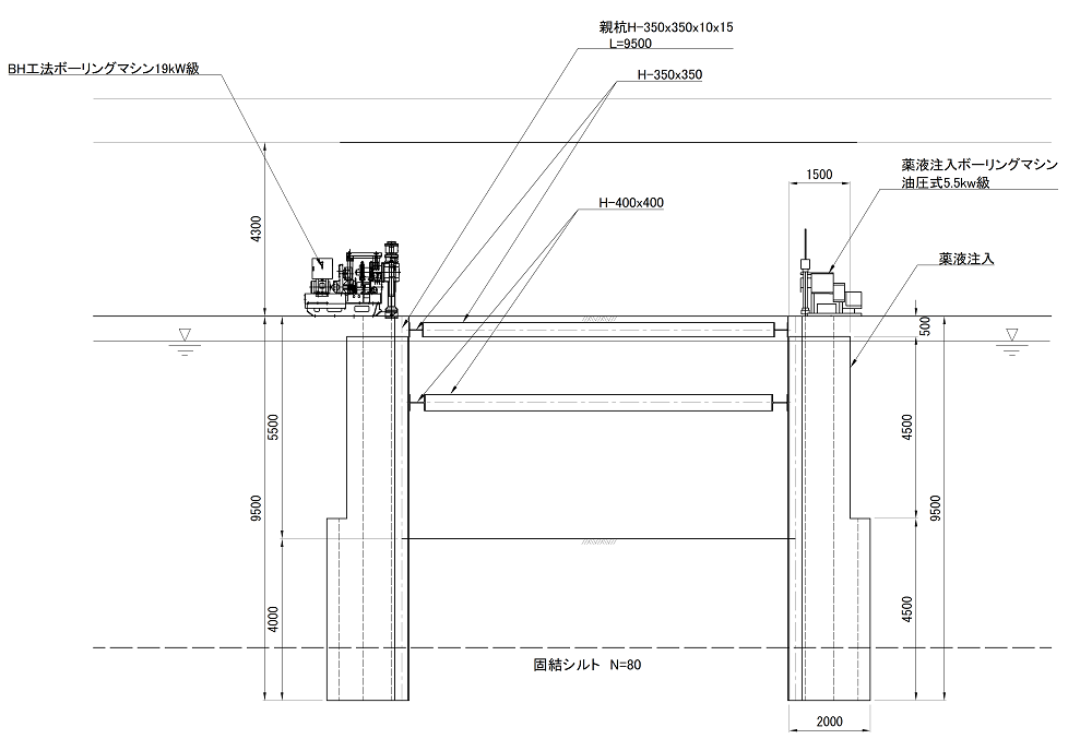
上空制限、硬質地盤における土留工


ウィンドウを閉じる